Scuola elementare

Marina di Ravenna (Ravenna) , 1979

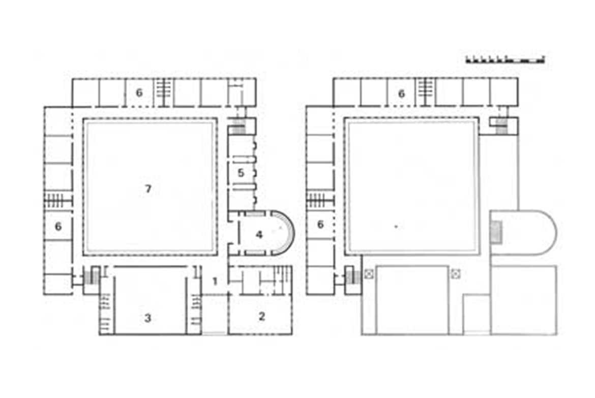
“Il luogo per la costruzione della scuola elementare a Marina di Ravenna si colloca nei pressi della statale Tosco-Romagnola, vicino ad un’area di espansione per edilizia popolare. La scuola è di 15 aule, per 375 alunni, ed è completata da una palestra, un auditorium, gli uffici e l’abitazione del custode. L’edificio si articola attorno ad una corte interna quadrata. Tale corte si pone come spazio organizzatore di tutto l’insieme poichè ad essa si affacciano direttamente od indirettamente i volumi dei vari corpi di fabbrica. In alzato, tramite le diverse prospettive del chiostro, l’impianto della scuola risulta sempre intelleggibile nel suo insieme mentre, attraverso le singole presenze formali, risulta facilitata l’individuazione delle funzioni specifiche di ogni sua parte. Il corridoio, divenuto chiostro, pur non perdendo la funzione di collegamento interno, si carica di significati che vanno oltre il semplice uso, mentre la sporgenza vetrata dell’auditorio e quella della palestra sottolineano gli incastri tra percorso e spazi collettivi. L’edificio è intonacato e verniciato in azzurro, gli infissi sono in alluminio anodizzato, gli interni sono tutti imbiancati ed i pavimenti , tranne la palestra, sono in piastrelle di grès rosso scuro”

Da Casabella n°401. 1975



Committente: Comune di Ravenna
Progetto: Claudio Baldisserri con B. Minardi e G. Grossi
Direzione Lavori: Claudio Baldisserri