 
        Ampliamento e riorganizzazione funzionale del Palazzo delle Associazioni da adibire a Centro Informazioni per la visitazione del Parco del Delta del Po. Porto Viro (Rovigo).
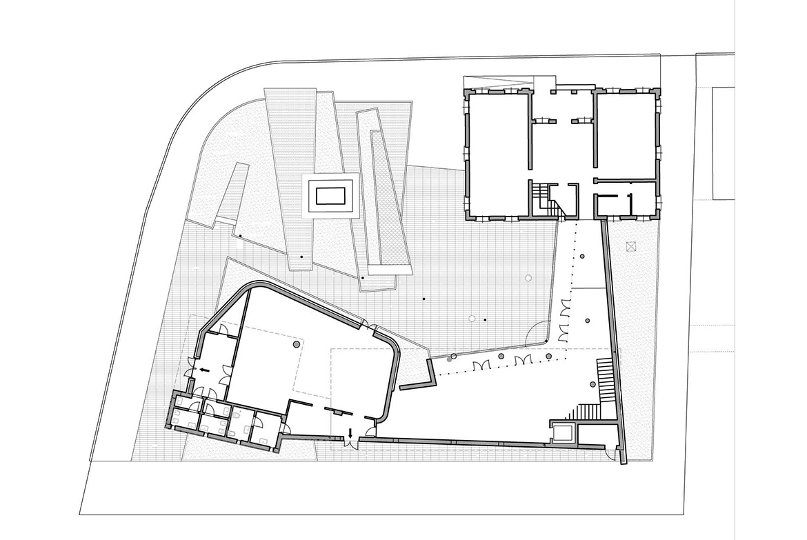
Il progetto, inserito nel programma Interreg. III A Italia – Slovenija 2000– 2006 “Coast to Coast” si propone come punto di riferimento per l'organizzazione di scambi culturali in grado di collegare i diversi partners che partecipano all'iniziativa. Prevede la ristrutturazione degli spazi del Palazzo delle Associazioni e l'ampliamento dello stesso attraverso un intervento che salvaguarda l'architettura dell'immobile esistente. L'ampliamento previsto infatti si sviluppa lateralmente ad esso ed è a questo collegato da un percorso coperto che mantiene autonome le due strutture creando altresì uno spazio all'aperto da destinare ad esposizioni temporanee. Questo nuovo edificio è pensato come un insieme di forme e materiali che si possono leggere come metafore dell'architettura locale, spesso caratterizzata da volumi diversi, costruiti in periodi diversi e funzionalmente determinati dalle necessità della famiglia e dell’azienda. Si è proposto quindi, l'aggregazione di volumi nuovi nelle diverse opportunità del vetro, dell'intonaco colorato, dell'acciaio e dello zinco-titanio che intendono legarsi all'edificio esistente con citazioni delle stesse linee. Al piano terra trovano un grande spazio per accoglienza, foyer, mostre, ed una sala convegni per 96 posti. Al primo e secondo piano sono collocati gli uffici amministrativi e direzionali e il secondo piano del “cubo”, leggermente disassato rispetto all'edificio in linea, si trova un grande vano tecnico a cielo aperto.
Costruzione 2006
Progetto: Claudio Baldisserri, Lorenzo Sarti con Elisabetta Callegaro (capoprogetto), Silvio D'Amore, Alessandro De Laurentiis.
Consulenti: Italstudio studio tecnico associato (strutture), G. Passerella (impianti), D. D'Antuono (computi).
Foto di Giovanni Lami
 
             
             
             
             
             
            